Büro- und Praxisflächen

Unter dieser Rubrik finden Sie Flächen in Ettlingen von privaten und externen Anbietern.

BÜRO / PRAXIS / AUSSTELLUNGSRÄUME - ca. 1.310 m² gepflegte Büroetage in Ettlingen-West

Worklab 18 Bild Büro
Aussenansicht
Worklab 18 Bild Labor
Büroraum exemplarisch
Cafeteria

Beschreibung
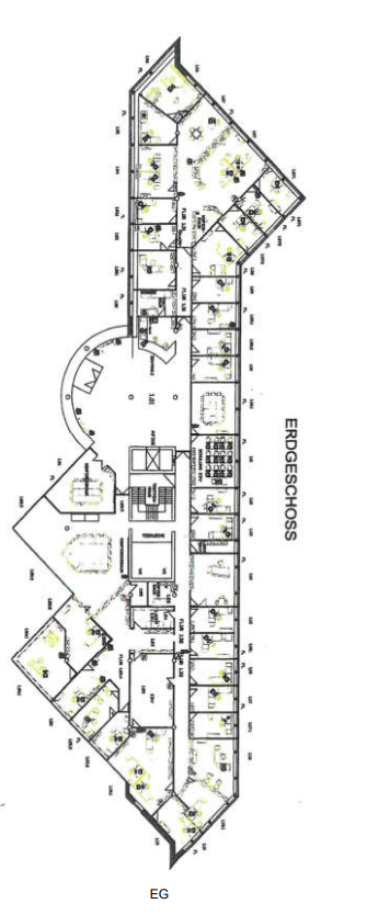
Sehr gepflegte Büroetage im EG eines markanten Bürohaus mit ca. 1.310 m². 
Repräsentatives Entree und durchdachte Aufteilung der Mietfläche. 
Ausreichend zusätzlich anmietbare Kfz-Stellplätze befinden sich hinter dem 
Gebäude. Zusätzlich ist eine aktive Cafeteria im II.OG vorhanden. Die 
entgeltliche Mitnutzung dieser Occasion ist ausdrücklich vermieterseits 
erwünscht. In jedem Geschoss ist eine kleine zentral gelegene Teeküche 
vorhanden. Bei Bedarf können bis zu 394 m² Lagerfläche im Hanggeschoß oder 
weitere Bürofläche im I.OG mitangemietet werden. Die Freistellung erfolgt ab 
Januar 2025. 

Worklab 18 Ansicht Fläche
Grundriss Erdgeschoss

Eckdaten
Adresse: Rudolf-Plank-Str. 31, 76275 Ettlingen
Objektart: Büro / Praxis / Ausstellungsräume
Miete: 7,75 €/m²
Bürofläche: ca. 1310 m²
Baujahr: 1992
Befeuerung/Energieträger: Erdgas leicht
Energieausweis liegt vor: vorhanden
Energieausweistyp: Verbrauchsausweis
Energieausweis gültig bis: 18.07.2034
Energieausweisdatum: 18.07.2024
Energiekennwert Wärme: 106,8 kWh/(m²*a)
Energiekennwert Strom: 79,5 kWh/(m²*a)

Mietpreis
10.152,50 € zzgl. Nebenkosten und zzgl. gesetzl. MwSt. 

Sonstiges
Ein Energieausweis ist vorhanden. 
Verbrauchssausweis
Erstelldatum: 18.07.2024 
Gültig bis: 18.07.2034 
Baujahr: 1992 
Energieträger für Heizung und Warmwasser: Gas 
Endenergiebedarf Strom: 79,5 kWh/(m²*a) 
Endenergiebedarf Wärme: 106,8 kWh/(m²*a) 
Ein neuer Energieausweis wird gerade erstellt. 
Alle Beträge sind Nettobeträge und verstehen sich zzgl. der gesetzl. MwSt

Lage
Verkehrsgünstige und exponierte Lage im Gewerbegebiet Ettlingen-West. Der 
BAB-A5 Anschluß Karlsruhe-Süd ist in wenigen Fahrminuten erreichbar. 
Ebenso die B-3 mit weiteren Anschluß nach Karlsruhe, bzw. die B-10
(Südtangente) 

Kontakt
IHR ANSPRECHPARTNER:
Herr Joachim Raber
Strecker-Olenyi Industrie- & Gewerbeimmobilien
Tel.: (0721) 9 62 46 60 │ Fax: (0721) 9 62 46 69 
info@strecker-olenyi.de │ www.strecker-olenyi.de 

Mieterprovisionsfrei und klimatisierte Büroetage mit ca. 1.502 m² in Ettlingen

Worklab 18 Bild Büro
Bürobereich - exemplarisch
Worklab 18 Bild Büro
Rückseite und Stellplätze
Worklab 18 Bild Labor
Besprechung
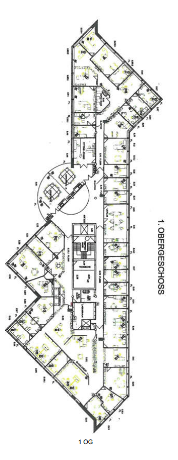
1. Obergeschoss

Beschreibung
Helle Etage mit ca. 1.502 m² in einem attraktiven Bürohaus im I.OG. 
Ausreichend zusätzlich anmietbare Kfz-Stellplätze befinden sich hinter dem 
Gebäude. Zusätzlich ist eine aktive Cafeteria im II.OG vorhanden. Die 
entgeltliche Mitnutzung dieser Occasion ist ausdrücklich vermieterseits 
erwünscht. In jedem Geschoss ist eine kleine zentral gelegene Teeküche 
vorhanden. Bei Bedarf können bis zu 394 m² Lagerfläche im Hanggeschoß oder 
weitere Büroflächen im EG mitangemietet werden. Die Freistellung erfolgt ab Januar 2025. 

Eckdaten
Adresse: 76275 Ettlingen, Rudolf-Plank-Str. 31
Objektart: Büro / Praxis / Ausstellungsräume
Miete: 7,75 €/m²
Bürofläche: ca. 1502 m²
Baujahr: 1992
Befeuerung/Energieträger: Erdgas leicht
Energieausweis liegt vor: vorhanden
Energieausweistyp: Verbrauchsausweis
Energieausweis gültig bis: 18.07.2034
Energieausweisdatum: 18.07.2024
Energiekennwert Wärme: 106,8 kWh/(m²*a)
Energiekennwert Strom: 79,5 kWh/(m²*a)

Mietpreis
11.640,50 € zzgl. Nebenkosten und zzgl. gesetzl. MwSt.

Sonstiges
Ein Energieausweis ist vorhanden. 
Verbrauchssausweis
Erstelldatum: 18.07.2024 
Gültig bis: 18.07.2034 
Baujahr: 1992 
Energieträger für Heizung und Warmwasser: Gas 
Endenergiebedarf Strom: 79,5 kWh/(m²*a) 
Endenergiebedarf Wärme: 106,8 kWh/(m²*a) 
Ein neuer Energieausweis wird gerade erstellt. 
Alle Beträge sind Nettobeträge und verstehen sich zzgl. der gesetzl. MwSt.

Lage
Verkehrsgünstige und exponierte Lage im Gewerbegebiet Ettlingen-West. Der 
BAB-A5 Anschluß Karlsruhe-Süd ist in wenigen Fahrminuten erreichbar. 
Ebenso die B-3 mit weiteren Anschluß nach Karlsruhe, bzw. die B-10
(Südtangente) 

Kontakt
IHR ANSPRECHPARTNER:
Herr Joachim Raber
Strecker-Olenyi Industrie- & Gewerbeimmobilien
Tel.: (0721) 9 62 46 60 │ Fax: (0721) 9 62 46 69 
info@strecker-olenyi.de │ www.strecker-olenyi.de 

BÜRO / PRAXIS / AUSSTELLUNGSRÄUME Mieterprovisonsfrei - ca. 2.812 m² repräsentative Büroflächen in Ettlingen

Worklab 18 Bild Büro
Haupteingang
Worklab 18 Bild Labor
Besprechung - exemplarisch
Worklab 18 Südansicht
Bürobeispiel

ObjektbeschreibungRepräsentative und klimatisierte Mietfläche mit gesamt ca. 2.812 m². Die 
Mietfläche befindet sich in einem markanten und attraktiven Bürohaus im EG 
und I.OG. Ausreichend zusätzlich anmietbare Kfz-Stellplätze befinden sich 
hinter dem Gebäude. Zusätzlich ist eine aktive Cafeteria im II.OG vorhanden. 
Die entgeltliche Mitnutzung dieser Occasion ist ausdrücklich vermieterseits 
erwünscht. In jedem Geschoss ist eine kleine zentral gelegene Teeküche 
vorhanden. Bei Bedarf können bis zu 394m² Lagerfläche im Hanggeschoß 
mitangemietet werden. Die Freistellung erfolgt ab Januar 2025.

Worklab 18 Ansicht Fläche
1. Obergeschoss

Sonstiges
Ein Energieausweis ist vorhanden.
Verbrauchssausweis
Erstelldatum: 18.07.2024 
Gültig bis: 18.07.2034 
Baujahr: 1992 
Energieträger für Heizung und Warmwasser: Gas 
Endenergiebedarf Strom: 79,5 kWh/(m²*a) 
Endenergiebedarf Wärme: 106,8 kWh/(m²*a) 
Ein neuer Energieausweis wird gerade erstellt. 
Alle Beträge sind Nettobeträge und verstehen sich zzgl. der gesetzl. MwSt.

Eckdaten
Adresse: Rudolf-Plank-Str. 31, 76275 Ettlingen
Objektart: Büro / Praxis / Ausstellungsräume
Miete: 7,75 €/m²
Bürofläche: ca. 2.812 m²
Baujahr: 1992
Befeuerung/Energieträger: Erdgas leicht
Energieausweis liegt vor: vorhanden
Energieausweistyp: Verbrauchsausweis
Energieausweis gültig bis: 18.07.2034
Energieausweisdatum: 18.07.2024
Energiekennwert Wärme: 106,8 kWh/(m²*a)
Energiekennwert Strom: 79,5 kWh/(m²*a)

Mietpreis
21.793,00 € zzgl. Nebenkosten und zzgl. gesetzl. MwSt. 

Lage
Verkehrsgünstige und exponierte Lage im Gewerbegebiet Ettlingen-West. Der 
BAB-A5 Anschluß Karlsruhe-Süd ist in wenigen Fahrminuten erreichbar. 
Ebenso die B-3 mit weiteren Anschluß nach Karlsruhe, bzw. die B-10 (Südtangente)

Kontakt
IHR ANSPRECHPARTNER:
Herr Joachim Raber 
Strecker-Olenyi Industrie- & Gewerbeimmobilien
Tel.: (0721) 9 62 46 60 │ Fax: (0721) 9 62 46 69 
info@strecker-olenyi.de │ www.strecker-olenyi.de 

Büroflächen im BCE Ettlingen - Am Hardtwald 7-11

Büroflächen im BCE Ettlingen - Am Hardtwald 7-11

BCE Ettlingen Repräsentativ, verkehrsgünstig, flexibel!
Ettlingen bietet mit  seiner historischen Altstadt, dem wunderschönen Schloss, und der sehr guten  wirtschaftlichen und kulturellen Infrastruktur ein modernes Ambiente zum Leben  und Arbeiten.

Objektbeschreibung
Der Gesamtkomplex umfasst ca. 12.000 m² moderne Bürofläche, die  in Einheiten von 54 bis 1500 m² flexibel unterteilbar sind. Er bietet damit  sowohl für Start-ups als auch mittelständische Unternehmen eine  Arbeitsatmosphäre mit Wohlfühlcharakter.
Zwei Gebäudekörper mit jeweils 5 Etagen sind durch einen  dekorativ bepflanzten Innenhof miteinander verbunden. Das 4. OG ist als  Penthouse mit umlaufender Terrasse und Blick auf den Schwarzwald gestaltet.
Hochwertige Materialien, moderne Farben und hohe Decken schaffen ein modernes  Ambiente.
Durchdachte Grundrisse bilden die Basis für flexible  Erweiterungsmöglichkeiten.
Ausreichend Parkmöglichkeiten stehen in der Tiefgarage so wie im Außenbereich  zur Verfügung.

Ausstattung
Flexible Raumaufteilung durch stützenfreie Konstruktion
Raumhöhen 3 Meter
Dekorative schallgedämmte Rasterdecken
Hochwertiger Teppichboden
Umlaufende Alu-Brüstungskanäle, Bodenkanäle und Kabelpritschen in den Decken
Großzügige Glas- oder Holztüren mit Oberlichtern
Sehr helle Räume durch großflächige Fenster
Außenliegende Jalousien zur Ost-, Süd-, und Westseite, Haus 11 auch zur Nordseite
Breite Treppenhäuser mit Granit und Edelstahlgeländern
Hervorragendes Wärmesystem durch vorgehängte Aluminiumfassadenplatten
Große Aufzüge, auch für Warentransport
Glasfaserverkabelung (LWL bis ins Gebäude)
Behindertengerechter Zugang
Belastbarkeit Geschosse 500 kg/m²
Laderampe
Gasheizung
2 Tiefgaragenebenen und Außenparkplätze
Photovoltaikanlage

Lage
Durch die optimale Lage an der BAB5, mit Nähe zum Schnittpunkt der Autobahnen Frankfurt-Basel und Stuttgart-München, sparen Sie sich viel Zeit. Die Fahrzeit zum Baden-Airpark beträgt ca. 20 Minuten, die Neue Messe ist in 10 Minuten zu erreichen. Der Karlsruher HBF und die City sind sowohl über den Zubringer als auch über öffentliche Verkehrsmittel angebunden. Die Bushaltestelle befindet sich direkt vor dem Objekt, die Fahrzeit zum Karlsruher Hauptbahnhof beträgt nur 30 Minuten.
Verpflegungsmöglichkeiten gibt es im gegenüberliegenden Hotel oder beim täglich anwesenden Frühstücksdienst.

Rundum Sorglos!
Bei uns mieten Sie nicht nur ein schönes Büro, bei uns bekommen Sie mehr für Ihr Geld. Ein Rundum-Sorglos-Paket, mit eigenem Hausmeister und Gärtner, damit Sie sich um die wichtigen Dinge kümmern können. Gerne übernehmen wir auch weitere Dienstleistungen für Sie. Und das alles provisionsfrei!

Neugierig?
Rufen Sie uns an und vereinbaren Sie einen Besichtigungstermin, denn das ist noch lange nicht alles – wir haben noch viel mehr zu bieten!

Ihr Ansprechpartner:
Business Immobilien GmbH
Frau Corinna Findling-Zolper
Breslauer Straße 12
76139 Karlsruhe
Tel.: 0721/68078250, Fax: 0721/68078259
Internet: www.freies-buero.de
E-Mail: info@freies-buero.de

Energetisch sanierte Büroflächen und Lager zur Vermietung. Teilbar ab 260 m². Otto-Hahn-Straße 18 in Ettlingen

Worklab 18 Bild Büro
Worklab 18 Bild Labor

Objektbeschreibung
Das gut sichtbare Bürogebäude liegt im Gewerbegebiet Ettlingen West und bietet Ihnen, Ihren Kunden und Mitarbeitern eine sehr gute Verkehrsanbindung und Gebäudeinfrastruktur für jede Anforderung. Im Gebäude stehen verschiedene Bereiche in der Größe ab ca. 260m² bis ca. 7.000 m²  zur Verfügung. Auf einer Ebene können ca. 1.900 m² beplant werden. Unser Gebäude ermöglicht eine stützenfreie Aufteilung der Mietfläche, darum eine frei wählbare Planung nach Mieterwunsch bei Raumhöhen von 3,0 m. Das Gebäude verfügt über eine hauseigene Tiefgarage mit 186 Parkplätzen, mit der Möglichkeit dem Einsatz von E-Ladepunkten für ihre Fahrzeuge. Hinzu kommen 113 Stellplätze im Freien auf unserem Grundstück.

Worklab 18 Ansicht Fläche
Worklab 18 Ansicht Fläche Labor

Ausstattung
Die Ausstattung und Raumaufteilung erfolgt in enger Abstimmung mit dem zukünftigen Mieter.
+ verglaster Treppenaufgang + 4 Personenaufzüge + außenliegender elektrischer Sonnenschutz +  neue, übergroße Isolierglasfenster,jeweils mit Dreh- u. Kippfunktion

Eckdaten
Objektart: Büro
Verfügbar ab: nach Vereinbarung
Mietdauer: langfristig
Fußweg zu öffentlichen Verkehrsmitteln: 5 Minuten
Fahrzeit zur nächstenn BAB: 5 Minuten
Fahrzeit zum nächsten Flughafen: 30 Minuten
Baujahr: 1998 (Objekt wird 2023/24 energetisch saniert)
Objektzustand: gepflegt
Qualität der Ausstattung: Normal
Bodenbelag: nach Mieterwunsch
Klimaanlage: nach Vereinbarung
DV-Verkabelung vorhanden: nach Vereinbarung
Personenaufzug: Ja
Basismiete: ab 13 Eur/ m² zzgl. der gesetzl. Ust.
Kaution: ja

Lage
Die Stadt Ettlingen liegt südlich von Karlsruhe in Baden-Württemberg. Nach Bruchsal ist sie die zweitgrößte Stadt des Landkreises Karlsruhe. In der Stadt gibt es mehrere Gewerbegebiete. Zahlreiche Firmen aus unterschiedlichen Branchen haben sich dort angesiedelt. Zudem sind in Ettlingen Gerichte und Behörden vertreten. Ettlingen ist optimal über die Autobahn A5 sowie über die Bundesstraße B3 zu erreichen. Die Deutsche Bahn hat in Ettlingen-West einen eigenen Bahnhof, der auch von zwei Stadtbahnen angefahren wird. Das Bürogebäude befindet sich in guter Lage im Gewerbegebiet West in Ettlingen. Erstklassige Verkehrsanbindung zu A8 und A5. In fußläufiger Entfernung ist ein Edeka-Markt, Metzger, Bäcker und Getränkemarkt angesiedelt.

Anbindung:
Bahnhof Ettlingen Wasen
5 Minuten mit dem Auto
Flughafen Karlsruhe/Baden-Baden
30 Minuten
Autobahn
5 Minuten und
ÖPNV fußläufig
5 Minuten.

Kontakt
thallos AG
Objekt Karlsruhe - Ettlingen GmbH
Dobler Str. 1
72074 Tübingen
Herr Stefan Kraft
Mobil:    +49 176. 473 170 65

Assistenz Frau Cindy Schöll
Telefon: +49 7071. 920 99 - 62

mailto: cindy.schoell@thallos.ag

Repräsentatives Unternehmeranwesen - Arbeiten und Wohnen unter einem Dach - Ettlingen-Schöllbronn ca. 1102 m²

Worklab 18 Bild Büro
Arbeiten und Wohnen
Worklab 18 Bild Labor
Worklab 18 Südansicht

Objektbeschreibung
Zum Verkauf steht dieses außergewöhnliche, architektonisch ansprechende Unternehmeranwesen, das sich auf einem 1.102 m² großen Grundstück im Gewerbegebiet "Nördlich vom Sportplatz Teilbereich Loh" in Ettlingen-Schöllbronn befindet.  Der Gebäudekomplex besteht aus einer Gewerbeimmobilie mit Lager- und Maschinenräumen, einem attraktiven Einfamilienhaus und einer Mehrfachgarage mit zusätzlicher Lagerfläche. 
 
Bislang als Schreinerei genutzt kann die Gewerbestätte laut Bebauungsplan mit Gewerbebetrieben aller Art sowie Geschäfts-, Büro- und Verwaltungsgebäuden genutzt werden. Das gesamte Anwesen wurde von einem ortsansässigen renommierten Architekten geplant und Ende der 80-iger Jahre erbaut. Die stilvolle und ästhetisch gestaltete Gewerbeeinheit schafft ein attraktives Arbeitsumfeld, während das Einfamilienhaus als außergewöhnlicher Lebensmittelpunkt und besondere Wohlfühloase für die gesamte Unternehmerfamilie dient.
 
Ausführliche Informationen zur Ausstattung und weitere Bilder entnehmen Sie dem Exposé, das wir Ihnen gerne unter Angaben Ihrer Kontaktdaten zusenden. Überzeugen Sie sich selbst von den Vorzügen dieser attraktiven Immobilie bei einer gemeinsamen Besichtigung vor Ort. Wir freuen uns auf Ihre Anfrage.

Worklab 18 Ansicht Fläche
Grundriss Erdgeschoss
Worklab 18 Ansicht Fläche Labor
Grundriss Dachgeschoss

Ausstattung
Das Anwesen ist aktuell wie folgt aufgeteilt:
 
Gewerbehalle, Baujahr 1990, mit ca. 473 m² Nutzfläche
EG: Gewerbeeinheit (bisher als Schreinerei genutzt mit Maschinenraum, Holzlager und Lackierkabine) und separatem Büro
UG: Lagerräume, Sozialräume und Heizanlage 
Luftraum mit zusätzlicher Staufläche
hohe Toreinfahrt bequem befahrbar mit Kleinlaster
 
Einfamilienhaus, Baujahr 1988, mit ca. 265 m² Wohn- und Nutzfläche:
EG: Wohnzimmer mit Kachelofen, Küche, Esszimmer, WC und Garderobe und 2 Terrassen
DG: Schlafzimmer, 2 Kinderzimmer, Tageslichtbad und 2 Balkone
UG: 3 Kellerräume
unverbauter Weitblick 
 
Mehrfachgarage, Baujahr 1990, mit ca. 58 m² Nutzfläche:
Garage für 3 Fahrzeuge, Stauraum im OG
 
Detailinformationen zur Ausstattung sowie weitere Objektbilder entnehmen Sie dem Exposé, dass wir Ihnen unter Angabe Ihrer Kontaktdaten gerne zur Verfügung stellen.
 

Lage
Die angebotene Immobilie befindet sich in Schöllbronn, einem Höhenstadtteil von Ettlingen. Schöllbronn ist ein beliebter Wohnort mit guter Infrastruktur und einer idyllischen, naturnahen Umgebung.
Einkaufsmöglichkeiten, Grundschule, Kindergarten und Ärzte sind vor Ort. Gute Anbindung an den öffentlichen Nahverkehr: die Ettlinger und Karlsruher Innenstadt sowie die umliegenden Gemeinden sind schnell und bequem erreichbar.
Das Anwesen selbst befindet sich im Schöllbronner Gewerbe-Mischgebiet in ruhiger Ortrandlage. Von dem Wohnhaus aus hat man einen unverbauten weitläufigen Blick in den großzügigen Garten und die angrenzenden Mähwiesen. Hier kann man die Ruhe und Natur genießen und sich vom Alltagsstress erholen.
Insgesamt bietet die Lage der Immobilie eine perfekte Kombination aus Arbeiten und Wohnen unter einem Dach sowie einer guten Anbindung an die umliegenden Städte/Gemeinden.

Sonstiges
Der Kauf des Objektes ist für den Käufer provisionsfrei.
Besichtigungstermine sind nach Vereinbarung und nach Vorlage des Finanzierungszertifikats oder Eigenkapitalnachweis möglich. Anfragen werden nur bei vollständiger Angabe Ihrer Kontaktdaten bearbeitet.Als Immobiliendienstleister sind wir gesetzlich dazu verpflichtet, die Identitäten unserer Kunden festzustellen. § § 1, 2 Abs. 1 Nr. 10, 4 Abs. 3 Geldwäschegesetz (GwG). Bei einer konkreten Kaufabsicht ist deswegen ein gültiger Personalausweis auf Verlangen vorzulegen. Bei Unternehmen, die im Handelsregister eingetragen sind, ein Auszug aus dem Handelsregister.

Die Angaben in diesem Exposé beruhen auf uns erteilten Informationen. Eine Haftung für die Richtigkeit und Vollständigkeit können wir daher nicht übernehmen. Dieses Exposé ist nur für Sie persönlich bestimmt. Eine Weitergabe an Dritte ist an unsere ausdrückliche Zustimmung gebunden und unterbindet nicht unseren Provisionsanspruch bei Zustandekommen eines Vertrages. Alle Gespräche bzgl. dieser Immobilie sind mit unserem Unternehmen zu führen. Bei Zuwiderhandlung behalten wir uns Schadenersatz bis zur Höhe der Provisionsansprüche ausdrücklich vor.
Alle durch MCS-Immobilien erstellten Daten, Texte und Bildmaterialien sind urheberrechtlich geschützt. Unberechtigte Verwendung und Vervielfältigungen werden zur Anzeige gebracht und ziehen eine Nutzungsberechnung nach sich.

Kontakt
Mirjam Sponer
Geschäftsführung
mirjam.sponer@mcs-immo.com 
07243-39923 0173-3503818
MCS-Immobilien
Schwarzwaldring 32
76275 Ettlingen
 

Ansiedlungen und Gewerbeflächen

Die Wirtschaftsregion Ettlingen bietet Unternehmen ein hervorragendes Umfeld mit Zugang zu den wichtigsten Absatz- und Zuliefermärkten. Wir helfen Ihnen gerne, geeignete Gewerbegrundstücke sowie Büro-, Hallen- und Produktionsflächen in Ettlingen zu finden. In einem persön­li­chen Gespräch stellen wir Ihnen gerne das städti­sche ­Ge­wer­be­flä­chen­port­fo­lio vor.
Unter der Rubrik private Gewerbeimmobilienangebote werden Immobi­li­e­n­ob­jekte in Ettlingen von Privatei­gen­tü­mern sowie Makler­un­ter­neh­men kostenfrei veröffentlicht. Wir stellen gerne den Kontakt zwischen Interessenten und Anbietern her. Schicken Sie uns einfach eine Email  wifoe@ettlingen.de

Städtische Gewerbeflächen

Die Stadt Ettlingen ist bestrebt, durch eine vorausschauende Flächenentwicklung ausreichend Gewerbeflächen für Betriebserweiterungen und Neuansiedlungen auszuweisen und vorzuhalten.

Unsere aktuellen Angebote:
Gewerbegrundstück "Industriegebiet Ettlingen-West, Carl-Metz-Straße", ca. 5.002 m²
Gewerbegrundstück "Industriegebiet Ettlingen-West, Carl-Metz-Straße", ca. 7.167 m²
Gewerbegrundstück "Industriegebiet Ettlingen-West, Carl-Metz-Straße", ca. 11.539 m²

Gewerbeflächenanfrage

Bei Interesse an einem städtischen Gewerbegrundstück bitten wir Sie, Ihre Gewerbeflächenanfrage online auszufüllen. Anschließend setzen wir uns mit Ihnen in Verbindung.

Private und externe Gewerbeimmobilienangebote